Centro de productos
-
Estación de monitoreo de equipos hidrológicos
-
Sensor de monitorización de la calidad del agua
-
Equipos de protección de plantas
-
Equipos de prueba de alimentos
- Estaciones de monitoreo del nivel de agua de Fengtu Technology: garantizando la eficiencia del embalse
- Monitores de humedad del suelo: facilitando la gestión científica de la humedad agrícola
- Sistema de Monitoreo del Nivel de Agua: Mejora de la Seguridad de los Embalses a Pequeña Escala mediante el Monitoreo Hidrológico Inteligente
- Principios y funciones de las estaciones de monitoreo de la humedad del suelo en la producción agrícola
- El papel del sistema de monitoreo del nivel del agua en la prevención de inundaciones en ríos y embalses
- Cómo los monitores de humedad del suelo potencian la producción agrícola con datos en tiempo real y gestión inteligente
Shandong Fengtu Compañía de tecnología IoT, Ltd.
Gerente de ventas:Sra. Emily Wang
Tel, Whatsapp:+86 15898932201
Correo:info@fengtutec.com
Dirección:Acelerador de la Industria Optoelectrónica (Fase I), n.° 155, Circuito Óptico, Zona de Alta Tecnología, ciudad de Weifang, provincia de Shandong

Monitoreo de Sedimentos en Aguas de Escorrentía
Modelo:FT-JL2
Marca:fengtu
Productos relacionados
Detalles del producto
1、Monitoreo de Sedimentos en Aguas de Escorrentía Introducción del producto
Monitoreo de Sedimentos en Aguas de Escorrentía es un dispositivo que monitorea y registra automáticamente el volumen de escorrentía y el contenido de sedimentos durante las lluvias en áreas de escorrentía superficial en pendientes.La medición manual tradicional de datos de caudal y sedimentos en campos de escorrentía y pequeñas cuencas hidrográficas presenta desafíos como la alta carga de trabajo, la baja eficiencia, los altos costos de mano de obra y la existencia de importantes errores en los datos.Tras años de investigación técnica y exhaustivas pruebas de campo, el sistema automatizado de monitoreo de pérdidas de suelo y agua ha revolucionado con éxito los métodos tradicionales de monitoreo manual.
Este sistema consta de un controlador de adquisición de datos, sensores de medición de concentración de sedimentos, sensores de caudal de canal abierto y sensores de lluvia.El sensor de caudal de canal abierto mide automáticamente el caudal de escorrentía y, a través del controlador, calcula con precisión los datos de escorrentía total e instantánea para diferentes períodos de tiempo.El sensor de concentración de sedimentos, basado en las características de la escorrentía, recopila datos de concentración de sedimentos de escorrentía en tiempo real en los puertos de medición de sedimentos perpendiculares a la escorrentía.El sensor de lluvia captura con precisión los datos de lluvia acumulada.Estos sensores trabajan en conjunto para recopilar datos cruciales para el análisis de pérdidas de suelo y agua.
El sistema carga en tiempo real los datos de contenido de sedimentos, escorrentía y precipitación acumulada recopilados por cada sensor en una plataforma en la nube.Esto permite a los usuarios acceder, analizar y gestionar los datos en cualquier momento y lugar, proporcionando un soporte científico y preciso para la toma de decisiones sobre conservación del suelo y el agua.
Flujo de trabajo del sensor de contenido de sedimentos: El agua superficial fluye desde el canal de derivación hacia el canal abierto o canal Parshall.El caudalímetro del canal abierto obtiene datos instantáneos de escorrentía y calcula la escorrentía total por unidad de tiempo.El agua superficial se recoge mediante la tubería de distribución y se envía al tanque principal.Cuando el tanque principal tiene suficiente capacidad de agua superficial para el análisis, el sistema se activa y envía el agua superficial a la cámara de muestreo.El sensor envía los datos recopilados al procesador para su procesamiento y determinación del contenido de sedimentos.Tras obtener los datos, el sensor descarga la muestra interna a través de la tubería de drenaje, preparándola para el siguiente muestreo.El procesador envía los datos a dispositivos externos a través de 485.
2、Monitoreo de Sedimentos en Aguas de Escorrentía Características del producto
1.Medición automática, sin operador, 24/7 del volumen de escorrentía, el contenido de sedimentos, el volumen total de escorrentía y la precipitación acumulada.
2.Alimentación dual: solar y red eléctrica, estable y fiable.Medición automática, sin operador, 24/7.
3.Monitoreo y visualización en tiempo real de los procesos dinámicos y las curvas de cada parámetro medido en software, así como datos históricos descargables.
4.La frecuencia de muestreo y el reloj se pueden configurar libremente in situ en el ordenador central de gestión de datos.
5.Excelente estabilidad: El sensor, desarrollado independientemente, ofrece alta precisión, gran estabilidad y gran resistencia a las interferencias ambientales.
3、Monitoreo de Sedimentos en Aguas de Escorrentía Indicadores técnicos
| Medición de caudal de lluvia | |
| Resolución | 0.1m³/h |
| Precisión de medición | 1% a 5% del rango (dependiendo de la precisión del estanque) |
| Zona ciega | 30~50cm |
| Medición de la contenido de arena | |
| Principio de medida | Modo de pesaje |
| Frecuencia de muestreo | 1~99 minutos |
| Rango de medición | 0~500kg/m3; |
| Resolución | 0.01kg/m3 |
| Precisión de medición | <10% |
| Medición de la lluvia | |
| Rango de medición | 0mm~4mm/min (per se permite una intensidad pluvial máxima de 8 mm/min) |
| Resolución | 0.2mm |
| Precisión de medición | ≤±3% (la precipitación artificial en interiores se realizará según el caudal de desagüe de la propia instrumentación) |
| Indicadores generales | |
| Modo de comunicación | RS485 |
| Fuente de alimentación para el trabajo | DC12V |
| Potencia del equipo | <15W |
| Entorno laboral | Temperatura: 0( no congelación) ~ 50℃; Humedad: < 95% ( sin gotas) |
| Longevidad laboral | >1 año |
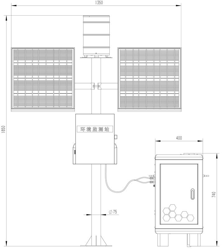
4、Monitoreo de Sedimentos en Aguas de Escorrentía Tamaño del producto y diagrama de funcionamiento


5、Monitoreo de Sedimentos en Aguas de Escorrentía Mantenimiento y cuidado
Antes del primer uso, afloje las varillas de bloqueo de transporte; de lo contrario, el dispositivo no funcionará correctamente.
Al utilizar el dispositivo por primera vez o después de un período de inactividad, vuelva a calibrarlo con agua fresca y póngalo a cero.
Inspeccione el depósito de agua periódicamente.Si hay una gran cantidad de lodo o residuos, retírelo.Retire la válvula de drenaje y enjuáguela bien.
Revise periódicamente la válvula de drenaje, la válvula de entrada de la cubeta de muestra y la válvula de drenaje de la cubeta de muestra para comprobar que el flujo de agua sea fluido.Si el flujo de agua es débil o nulo, retire la línea de control de la válvula de drenaje, límpiela y vuelva a instalarla.
Mantenga el interior del dispositivo limpio y ordenado.No apile objetos en el área de pesaje ni los coloque debajo de la cubeta de muestra.
Cuando la temperatura en el área donde se encuentra el dispositivo descienda por debajo de cero, vacíelo para evitar la formación de hielo y dañarlo.
Si el sensor presenta errores de medición después de un uso prolongado, calibrélo con el instrumento.Si la calibración y la medición siguen fallando a pesar del mantenimiento y cuidado del sensor mencionados anteriormente, el sensor está dañado.
6、Monitoreo de Sedimentos en Aguas de Escorrentía Introducción a la Plataforma en la Nube
La Plataforma en la Nube IoT es una plataforma de recepción, procesamiento y análisis de datos basada en tecnologías de comunicación IoT.Es compatible con el protocolo de comunicación de dispositivos MQTT, los protocolos de protección ambiental HJ212-2017 y HJ212-2005, el reenvío de datos mediante enlaces cortos TCP/IP, el reenvío de datos mediante protocolo HTTP, la consulta y el análisis de datos históricos y en tiempo real, la visualización de formas de onda de datos de series temporales, la agregación de datos, el acceso a vídeo en tiempo real y la asignación de mapas de dispositivos.
URL del texto:https://www.fengtusz.com/es/Soil-Erosion-Monitoring/Monitoring-Sediment-in-Runoff-Water.html
- Artículo anterior :Suelo Sistema de Monitoreo de Erosión
- Siguiente artículo:Sistema de Monitoreo de Erosión del Suelo Totalmente Automatizado
Artículo relacionado
-
Sistema Automático de Monitoreo de Suelos: Monitoreo Remoto en Tiempo Real de la Humedad del Suelo en Áreas de Cultivo
2025-10-14 -
Estación de Monitoreo de Pluviometría: Herramienta Indispensable para la Observación de Pluviometría y los Servicios Meteorológicos Agrícolas
2025-10-14 -
Equipos de monitoreo de núcleos (medidor de vertedero magnetoestrictivo, estación GNSS) y fabricante para la seguridad de presas de embalse
2025-10-14 -
Cubriendo todos los rangos de pH del suelo: Comprobador de pH del suelo Fengtu para tierras de cultivo, huertos y más
2025-10-14 -
Cómo los monitores de humedad del suelo potencian la producción agrícola con datos en tiempo real y gestión inteligente
2025-10-14 -
Una estación de monitoreo GNSS
2025-10-14 -
Monitor de réplicas sísmicas FT-YZ2: Alertas oportunas para la seguridad tras un terremoto
2025-10-14 -
Una descripción general de los sensores GNSS: estructura, funcionamiento y aplicación en hidrología
2025-10-14


Obtenga una cotización gratis






